Lot 20
    Terraced
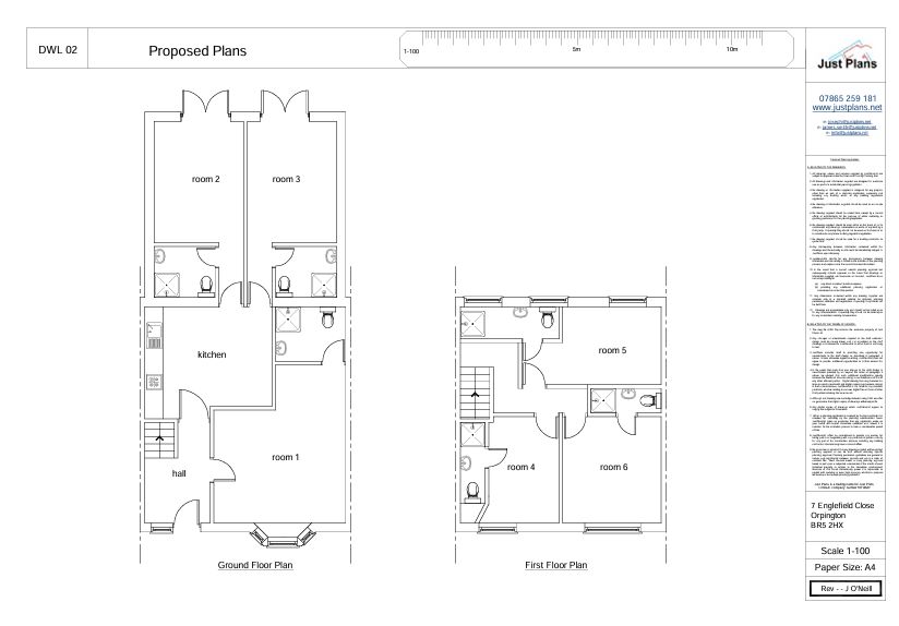
    7 Englefield Close
    Orpington, Kent, BR5 2HX
    Sold prior to auction, for an undisclosed amount
     
    Number 1
    A Vacant Three Bedroom Mid Terrace House

    Description

    The property comprises a three bedroom mid terrace house arranged over ground and first floors. We understand the property is of non-standard contruction. Plans have been drawn up for the property to be converted into an HMO. No planning application has been submitted for this scheme. Drawings of the proposed plans are available for inspection upon request. Auction House London make no representations or warranties with regard to this scheme and/or the validity of the aforementioned plans. Buyers must rely on their own enquiries with regard to any development potential, permissions required and any previous planning history in respect of this site.

    Tenure

    Freehold

    Location

    The property is situated on a residential road close to local shops and amenities. The open spaces of Scadbury Estate Country Park are within easy reach. Transport links are provided by St Mary Cray rail station.

    Accommodation

    Ground Floor
    Reception Room
    Kitchen

    First Floor
    Three Bedrooms
    Bathroom

    Exterior

    The property benefits from a rear garden.

    EPC Rating

    D
    Open in new tab
    Viewing Schedule (No Booking Required)
    For further information, please register for the legal pack. To speak to a member of our team about this lot, please call us on
    Share this lot

    Additional Fees and Disclaimer

    Administration charge: £1,800 including VAT unless otherwise stated in the addendum.

    Buyers Premium and Disbursements: Please see the legal pack and the addendum for any disbursements and buyers premium that may be payable by the purchaser on completion.

    Guide Prices are provided as an indication of each seller’s minimum expectation. They are not necessarily figures which a property will sell for and may change at any time prior to the auction. Each property will be offered subject to a Reserve ( a figure below which the Auctioneer cannot sell the property during the auction) which we expect will be set within the Guide Range or no more than 10% above a single figure Guide.

    Particulars including images and video tours on the website and within the catalogue are believed to be correct but their accuracy is not guaranteed. The auctioneers will always endeavour to inform prospective purchasers of variations to the catalogue, when such changes are brought to their attention. The auctioneers nor their clients can be held responsible for any losses, damages, or abortive costs incurred in respect of lots that are withdrawn or sold prior to auction. Viewings are carried out by third party agents and we will endeavour to give appropriate notice should the published viewing time change. Auction House London will not be liable for any costs or losses incurred due to viewing cancellations or no shows. Information relating to Rating matters has been obtained by verbal enquiry only. Prospective purchasers are advised to make their own enquiries of the appropriate authorities. Prospective purchasers are deemed to verify for themselves whether tenanted properties are occupied and rents are being paid. All measurements, areas and distances are approximate only. Potential buyers are advised to check them. No representation or warranty is made in respect to the structure of any properties nor in relation to their state of repair. Prospective buyers should arrange for a survey of the particular lot by a professionally qualified person.

    Click Here for our Notice to Prospective Buyers

    Contact Our Property Experts