Lot 257
    Land
    Land Adjacent to 15 Wood End Close
    Hemel Hempstead, Hertfordshire, HP2 4RF
    £10,000+
    Guide Price (plus fees)
    Number 1
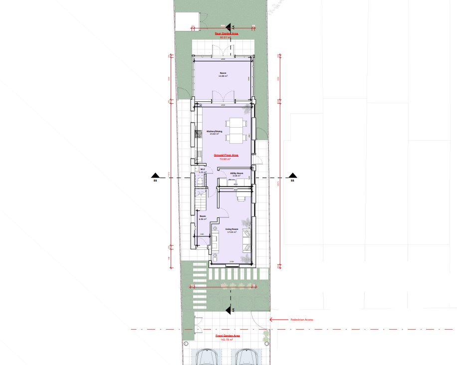
    A Plot of Land Measuring Approximately 246 sq m (2,648 sq ft)

    Description

    The lot comprises a plot of land measuring approximately 246 sq m (2,648 sq ft). Plans have been drawn up for the erection of a three bedroom house. No planning application has been submitted for this scheme. Drawings of the proposed plans are available for inspection upon request. Auction House London make no representations or warranties with regard to this scheme and/or the validity of the aforementioned plans. Buyers must rely on their own enquiries with regard to any development potential, permissions required and any previous planning history in respect of this site.

    Tenure

    Freehold

    Location

    The land is situated on a residential road close to local shops and amenities. The open spaces of Keens Field are within easy reach. Transport links are provided by Hemel Hempstead rail station and the M1.

    Note

    The site area depicted within the plan in the auction particulars is for indicative purposes only. Additionally, any measurements stated may not be exact. Some or all of the plot may comprise adopted highway land and if the site has trees, there may be Tree Preservation Orders in place. Buyers should rely on their own enquiries with regard to precise measurements, any consents or rights over the land and any possible development potential or alternative uses for this site.
    Open Site
    For further information, please register for the legal pack. To speak to a member of our team about this lot, please call us on
    Share this lot

    Additional Fees and Disclaimer

    Administration charge: £1,800 including VAT unless otherwise stated in the addendum.

    Buyers Premium and Disbursements: Please see the legal pack and the addendum for any disbursements and buyers premium that may be payable by the purchaser on completion.

    Guide Prices are provided as an indication of each seller’s minimum expectation. They are not necessarily figures which a property will sell for and may change at any time prior to the auction. Each property will be offered subject to a Reserve ( a figure below which the Auctioneer cannot sell the property during the auction) which we expect will be set within the Guide Range or no more than 10% above a single figure Guide.

    Particulars including images and video tours on the website and within the catalogue are believed to be correct but their accuracy is not guaranteed. The auctioneers will always endeavour to inform prospective purchasers of variations to the catalogue, when such changes are brought to their attention. The auctioneers nor their clients can be held responsible for any losses, damages, or abortive costs incurred in respect of lots that are withdrawn or sold prior to auction. Viewings are carried out by third party agents and we will endeavour to give appropriate notice should the published viewing time change. Auction House London will not be liable for any costs or losses incurred due to viewing cancellations or no shows. Information relating to Rating matters has been obtained by verbal enquiry only. Prospective purchasers are advised to make their own enquiries of the appropriate authorities. Prospective purchasers are deemed to verify for themselves whether tenanted properties are occupied and rents are being paid. All measurements, areas and distances are approximate only. Potential buyers are advised to check them. No representation or warranty is made in respect to the structure of any properties nor in relation to their state of repair. Prospective buyers should arrange for a survey of the particular lot by a professionally qualified person.

    Click Here for our Notice to Prospective Buyers

    Similar Properties

    Garages and Land at 29 Beechwood Avenue, Potters Bar, Hertfordshire, EN6 2PJ
    LOT 7
    Guide Price: £140,000+
    LandFreehold
    Garages and Land at 29 Beechwood Avenue, Potters Bar, Hertfordshire, EN6 2PJ
    Three Single Storey Lock Up Garages Situated on a Plot of Land Measuring Approximately 252 sq m (2,714 sq ft). Offered With Planning Permission for the Erection of a Four Bedroom House
    Open Site
    Land to the Rear of 69 Cowley Hill, Borehamwood, Hertfordshire, WD6 5LH
    LOT 59
    Guide Price: £100,000+
    LandFreehold
    Land to the Rear of 69 Cowley Hill, Borehamwood, Hertfordshire, WD6 5LH
    A Plot of Land Measuring Approximately 210 sq m (2,261 sq ft). Offered with Planning Permission for the Erection of a Three Bedroom Dwelling
    Open Site

    Contact Our Property Experts