Lot 42
    Land
    Land at 1 Townsend Cooks Hill
    Clutton, Bristol, Avon, BS39 5RD
    £200,000+
    Guide Price (plus fees)
    Number 1
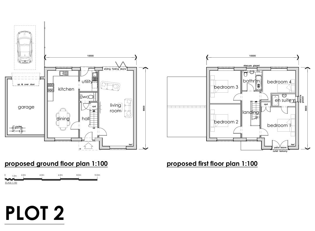
    A Plot of Land Measuring Approximately 1,012 sq m (10,889 sq ft) Offered With Planning Permission for the Erection of Two Dwellings

    Description

    The land comprises a plot of land measuring approximately 1,012 sq m (10,889 sq ft).

    Tenure

    Freehold

    Location

    The land is situated on a residential road close to local shops and amenities. The open spaces of Gores Park are within easy reach. Transport links are provided by the A37.

    Planning

    Bath & North East Somerset Borough Council granted the following planning permission (ref: 24/04291/OUT) on 26th November 2024 : 'Demolition of Existing Garage and Shed. Construction of 2no new dwellings with parking and associated works on land adjacent to 1 Townsend'.

    Note

    The site area depicted within the plan in the auction particulars is for indicative purposes only. Additionally, any measurements stated may not be exact. Some or all of the plot may comprise adopted highway land and if the site has trees, there may be Tree Preservation Orders in place. Buyers should rely on their own enquiries with regard to precise measurements, any consents or rights over the land and any possible development potential or alternative uses for this site.
    Open Site
    For further information, please register for the legal pack. To speak to a member of our team about this lot, please call us on
    Share this lot

    Additional Fees and Disclaimer

    Administration charge: £1,500 including VAT unless otherwise stated in the addendum.

    Buyers Premium and Disbursements: Please see the legal pack and the addendum for any disbursements and buyers premium that may be payable by the purchaser on completion.

    Guides are provided as an indication of each seller’s minimum expectation. They are not necessarily figures which a property will sell for and may change at any time prior to the auction. Each property will be offered subject to a Reserve ( a figure below which the Auctioneer cannot sell the property during the auction) which we expect will be set within the Guide Range or no more than 10% above a single figure Guide.

    Particulars including images and video tours on the website and within the catalogue are believed to be correct but their accuracy is not guaranteed. The auctioneers will always endeavour to inform prospective purchasers of variations to the catalogue, when such changes are brought to their attention. The auctioneers nor their clients can be held responsible for any losses, damages, or abortive costs incurred in respect of lots that are withdrawn or sold prior to auction. Viewings are carried out by third party agents and we will endeavour to give appropriate notice should the published viewing time change. Auction House London will not be liable for any costs or losses incurred due to viewing cancellations or no shows. Information relating to Rating matters has been obtained by verbal enquiry only. Prospective purchasers are advised to make their own enquiries of the appropriate authorities. Prospective purchasers are deemed to verify for themselves whether tenanted properties are occupied and rents are being paid. All measurements, areas and distances are approximate only. Potential buyers are advised to check them. No representation or warranty is made in respect to the structure of any properties nor in relation to their state of repair. Prospective buyers should arrange for a survey of the particular lot by a professionally qualified person.

    Click Here for our Notice to Prospective Buyers

    Similar Properties

    Land at 1 Townsend Cooks Hill, Clutton, Bristol, Avon, BS39 5RD
    LOT 42
    Guide Price: £200,000+
    LandFreehold
    Land at 1 Townsend Cooks Hill, Clutton, Bristol, Avon, BS39 5RD
    A Plot of Land Measuring Approximately 1,012 sq m (10,889 sq ft) Offered With Planning Permission for the Erection of Two Dwellings
    Open Site
    427A/B Upminster Road North, Rainham, Essex, RM13 9SA
    LOT 81
    Guide Price: £220,000+
    LandFreehold
    427A/B Upminster Road North, Rainham, Essex, RM13 9SA
    A Plot of Land Measuring Approximately 360 sq m (3,875 sq ft). A Planning Application has been Submitted for the Erection of 2 x Two Bedroom Houses.
    Open Site

    Contact Our Property Experts