Lot 170A
    Land
    Land to the North West of Collingwood Road
    Horsham, West Sussex, RH12 2QN
    Sold for £20,000.
     
    Number 1
    A Plot of Land Measuring Approximately 7,750 sq ft (720 sq m).

    Description

    The plot comprises an irregular shaped plot of land measuring approximately 7,750 sq ft (720 sq m).

    Tenure

    Freehold

    Location

    The property is situated on a residential road close to local shops and amenities. The open spaces of Warnham Park are within easy reach. Transport links are provided by Littlehaven rail station.

    Planning

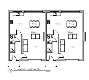
    Plans have been drawn up for the erection of 2 x three bedroom houses and 1 x two bedroom house all with off-street parking. Drawings of the proposed plans are available for inspection. Auction House London make no representations or warranties with regard to this scheme and/or the validity of the aforementioned plans. Buyers must rely on their own enquiries with regard to any development potential, permissions required and any previous planning history in respect of this site.

    Note

    The site area depicted within the plan in the catalogue particulars is for indicative purposes only and is not an exact measurement. Buyers should refer to the legal pack for the accurate site boundary and any other consents or rights over the land. Purchasers are deemed to rely on their own enquiries with regard to any possible development potential or alternative uses for this land plot. All or part of this Lot may comprise adopted highway. All interested Buyers should rely on their own enquiries with the local authority.
    Open Site
    For further information, please register for the legal pack. To speak to a member of our team about this lot, please call us on
    Share this lot

    Additional Fees and Disclaimer

    Administration charge: £1,800 including VAT unless otherwise stated in the addendum.

    Buyers Premium and Disbursements: Please see the legal pack and the addendum for any disbursements and buyers premium that may be payable by the purchaser on completion.

    Guide Prices are provided as an indication of each seller’s minimum expectation. They are not necessarily figures which a property will sell for and may change at any time prior to the auction. Each property will be offered subject to a Reserve ( a figure below which the Auctioneer cannot sell the property during the auction) which we expect will be set within the Guide Range or no more than 10% above a single figure Guide.

    Particulars including images and video tours on the website and within the catalogue are believed to be correct but their accuracy is not guaranteed. The auctioneers will always endeavour to inform prospective purchasers of variations to the catalogue, when such changes are brought to their attention. The auctioneers nor their clients can be held responsible for any losses, damages, or abortive costs incurred in respect of lots that are withdrawn or sold prior to auction. Viewings are carried out by third party agents and we will endeavour to give appropriate notice should the published viewing time change. Auction House London will not be liable for any costs or losses incurred due to viewing cancellations or no shows. Information relating to Rating matters has been obtained by verbal enquiry only. Prospective purchasers are advised to make their own enquiries of the appropriate authorities. Prospective purchasers are deemed to verify for themselves whether tenanted properties are occupied and rents are being paid. All measurements, areas and distances are approximate only. Potential buyers are advised to check them. No representation or warranty is made in respect to the structure of any properties nor in relation to their state of repair. Prospective buyers should arrange for a survey of the particular lot by a professionally qualified person.

    Click Here for our Notice to Prospective Buyers

    Contact Our Property Experts